MH型电动葫芦门式起重机
山东起重机、山东起重机械、山东起重设备
本机工作环境温度为35℃一20℃,电源为三相交流50HZ.380V。
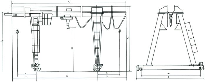
本机外形尺寸仅供参考

MH型3.2~12.5吨电动葫芦门式起重机

本机工作环境温度为35℃一20℃,电源为三相交流50HZ.380V。
本机外形尺寸仅供参考
| 起重量 | 跨度 | 起升高度 | 轮距B | 工作制度A5 | 电动葫芦 | 运行机构 | 主要尺寸 | 大轮压 | ||||||||||||
| 型号 | 起升速度 | 运行速度 | 运行速度 | 减速机 | 电动机 | h1 | h2 | B1 | L3 | 左悬臂长度L1 | 右悬臂长度L2 | 有效悬臂长度L | 起重机总重 | |||||||
| t | m | 型号 | 功率 | |||||||||||||||||
| 3-3.2 | 10 | 6 | 6 | A5(中级) | CD1 MD1 | 8 8/0.8 7 7/0.7 | 20 | 34.2 | ZSC(A)-400-IV-1/2(套装) | YZ(R)132M1-6 | 2×2.5 | 7873 | 7600 | 7290 | 16420 | 3060 | 3560 | 2500 | 9.91 | 65 |
| 14 | 21820 | 3760 | 4060 | 3200 | 10.7 | 67.9 | ||||||||||||||
| 18 | 8023 | 28480 | 5240 | 5240 | 4200 | 11.4 | 70.8 | |||||||||||||
| 22 | 8123 | 33640 | 5820 | 5820 | 5500 | 12.6 | 73.8 | |||||||||||||
| 5 | 10 | 6 | 6 | 37 | ZSC(A)-600-IV-1/2(套装) | YZ(R)132M1-6 | 2×2.5 | 8110 | 7777 | 7290 | 16670 | 3130 | 3540 | 2500 | 10.6 | 91 | ||||
| 14 | 6/9 | 6/8 | 8260/11260 | 7837/10837 | 7290/9290 | 22070 | 3830 | 4240 | 3200 | 12/14.6 | 95/102 | |||||||||
| 18 | 6/9 | 6/8 | 38 | YZ(R)132M2-6 | 2×4 | 8411 /11411 | 7888/10888 | 7290/9290 | 28480 | 5240 | 5240 | 4200 | 15.4/17.7 | 103/110 | ||||||
| 22 | 6/9 | 6/8 | 8563/11563 | 7820/10820 | 7290/9290 | 35080 | 6540 | 6540 | 5500 | 18.1/20.8 | 108/119 | |||||||||
| 8 | 10 | 6 | 6 | 37 | YZ(R)132M1-6 | 2×2.5 | 8260 | 7837 | 7290 | 17200 | 3370 | 3830 | 2500 | 12.3 | 125 | |||||
| 14 | 6/9 | 6/8 | 38 | YZ(R)132M2-6 | 2×4 | 8411/11411 | 7888/10888 | 7290/9290 | 22600 | 4070 | 4530 | 3200 | 14.8/16.6 | 131/136 | ||||||
| 18 | 6/9 | 6/8 | 8563/11563 | 7820/10820 | 7290/9290 | 28600 | 5070 | 5530 | 4200 | 17.6/19.9 | 136/144 | |||||||||
| 22 | 6/9 | 6/8 | YZ(R)160M1-6 | 2×6.3 | 8763/11763 | 7920/10920 | 7290/9290 | 35660 | 6830 | 6830 | 5500 | 21.3/23.2 | 145/159 | |||||||
| 10 | 14 | 6/9 | 6/8 | 38 | YZ(R)132M2-6 | 2×4 | 8611/11611 | 7868/10868 | 7290/9290 | 22600 | 4070 | 4530 | 3200 | 16.2/19.3 | 160/171 | |||||
| 18 | 6/9 | 6/8 | 8786/11786 | 7943/10943 | 7290/9290 | 28600 | 5070 | 5530 | 5500 | 18.2/21.5 | 159/173 | |||||||||
| 22 | 6/9 | 6/8 | YZ(R)160M1-6 | 2×6.3 | 8986/11986 | 8043/11043 | 7290/9290 | 35660 | 6830 | 6830 | 3200 | 22.5/25.7 | 176/190 | |||||||
| 16 | 14 | 6/9 | 6/8 | 38 | YZ(R)132M2-6 | 2×4 | 8888/11888 | 8045/11045 | 7290/9290 | 23100 | 4510 | 4590 | 4200 | 17.6/21.3 | 201/209 | |||||
| 18 | 6/9 | 6/8 | YZ(R)160M1-6 | 2×6.3 | 9088/12288 | 8145/11145 | 7290/9290 | 29100 | 5510 | 5590 | 5500 | 21.3/24.6 | 209/221 | |||||||
| 22 | 6/9 | 6/8 | 9288/12288 | 8245/11245 | 7290/9290 | 35760 | 6870 | 6890 | 25.3/28.5 | 224/232 | ||||||||||
返回上一页 MH型电动葫芦门式起重机 2010-11-12 本文被阅读 6738 次



位浏览者